Etelä-Haaga, Haaga, Orapihlajatie 12
Etelä-Haagan rauhallisella alueella, sijaitseva yksiö, joka tarjoaa loistavat kulkuyhteydet ja mukavan asuinympäristön.
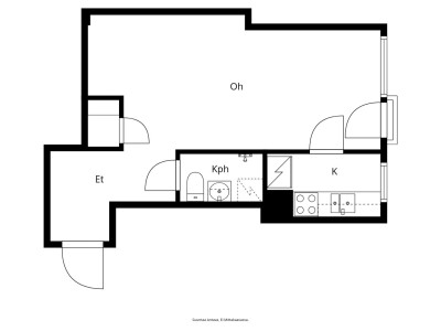
Asunto on kolmannessa kerroksessa nelikerroksisessa talossa.
Huoneiston avara olohuone ranskalaisella parvekkeella avautuu etelä/länsi-suuntaan, tarjoten näkymät sisäpihalle ja Huopalahden juna-aseman suuntaan.
Tilava kph/wc, joka ei kaipaa kunnostusta, tilaa pesukoneelle.
Taloyhtiö Asunto-osakeyhtiö Kurenpesä on hyvin hoidettu, ja säännölliset remontit tehty ajallaan, ei suuria remontteja tulossa.
Pienellä kunnostamisella tasokas yksiö Etelä-Hagasta.
Sijainti on erinomainen: Huopalahden juna-asema on vain sadan metrin päässä, ja Vihdintien raitiovaunupysäkille on lyhyt kävelymatka. Alueella on hyvät pyöräilyreitit ja sujuvat yhteydet autolla.
Tämä koti sopii mainiosti niin ensiasunnoksi kuin sijoituskohteeksi.
Vi öppnar dörrar till nytt - ta kontakt och boka din egen visningstid eller delta i vår öppna visning!
Ota yhteyttä ja sovi esittelyajoista!
Service also in English.
Lisätiedot ja esittelyt / Tilläggsinfo och visningar
Kai Mäkinen
Partner, LKV, LVV
kai@centrallkv.fi
+358 500 577 334
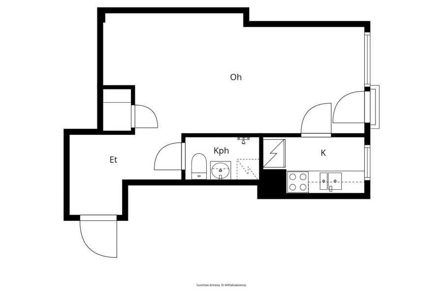
Asunto on kolmannessa kerroksessa nelikerroksisessa talossa.
Huoneiston avara olohuone ranskalaisella parvekkeella avautuu etelä/länsi-suuntaan, tarjoten näkymät sisäpihalle ja Huopalahden juna-aseman suuntaan.
Tilava kph/wc, joka ei kaipaa kunnostusta, tilaa pesukoneelle.
Taloyhtiö Asunto-osakeyhtiö Kurenpesä on hyvin hoidettu, ja säännölliset remontit tehty ajallaan, ei suuria remontteja tulossa.
Pienellä kunnostamisella tasokas yksiö Etelä-Hagasta.
Sijainti on erinomainen: Huopalahden juna-asema on vain sadan metrin päässä, ja Vihdintien raitiovaunupysäkille on lyhyt kävelymatka. Alueella on hyvät pyöräilyreitit ja sujuvat yhteydet autolla.
Tämä koti sopii mainiosti niin ensiasunnoksi kuin sijoituskohteeksi.
Vi öppnar dörrar till nytt - ta kontakt och boka din egen visningstid eller delta i vår öppna visning!
Ota yhteyttä ja sovi esittelyajoista!
Service also in English.
Lisätiedot ja esittelyt / Tilläggsinfo och visningar
Kai Mäkinen
Partner, LKV, LVV
kai@centrallkv.fi
+358 500 577 334






