Punavuori, Punavuorenkatu 5
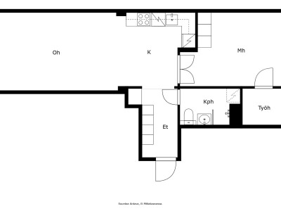
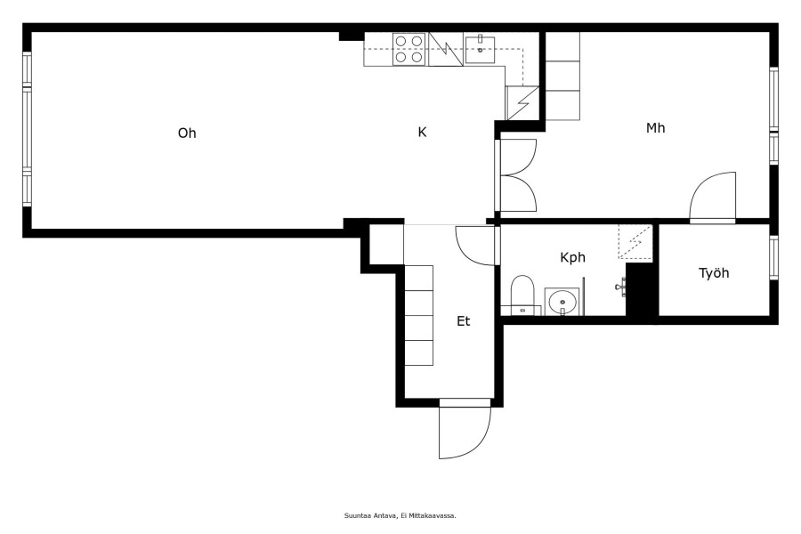
Valoa, uudenkarheaa raikkautta, laadukkaat materiaalit ja kauniit yksityiskohdat - kuvankaunis kaksio, jossa bonuksena kolmas pieni huone, joka soveltuu työtilaksi, vaatehuoneeksi tai jopa pienen lapsen omaksi huoneeksi. Ihastuttavat näkymät sekä sisäpihalle että Punavuorenkadulle. Tilava kylpyhuone, johon mahtuu pesutorni. Hyvin säilytystilaa ja taloyhtiöllä myös kiva kattoterassi ja autopaikkoja. Hyvin hoidettu, pitkälti peruskorjattu ja vakavarainen yhtiö, joka sai huhtikuussa 2025 päättyneellä tilikaudella yli 84.000 euroa vuokratuloja omistamistaan liiketiloista tarjoten osakkailleen turvaa. Täällä asut loistavien kulkuyhteyksien päässä ja monipuolisten palveluiden välittömässä läheisyydessä aivan ydinkeskustan tuntumassa.
Ota yhteyttä ja sovi oma esittelyaikasi. Avaamme ovet uuteen - lämpimästi tervetuloa!
Ljus och med god smak nyrenoverad tvårummare med ett litet extra tredje rum, som fungerar väl som ett arbetsrum, klädrum eller sovrum för ett litet barn. Vacker utsikt mot innergården i norr och Rödbergsgatan i söder. Rymligt badrum, tvättorn ryms. Rikligt med förvaringsutrymme och husbolaget har en trivsam takterrass samt bilplatser på gården. Väl skött bolag med hyresintäkter (ca 84.000 eur per bokslut 30.4.2025) och de flesta stora renoveringarna gjorda. Här bor du ett stenkast från kärncentrum, nära goda trafikförbindelser och service.
Ta kontakt och boka in din egen visningstid. Vi öppnar dörrar till nytt - hjärtligt välkommen!
Lisätiedot ja esittelyt / Tilläggsinfo samt visningar
Linda Salonius-Pasternak
Partner, LKV, KTM
linda@centrallkv.fi
+358 45 2014331
Service also in English!
Ota yhteyttä ja sovi oma esittelyaikasi. Avaamme ovet uuteen - lämpimästi tervetuloa!
Ljus och med god smak nyrenoverad tvårummare med ett litet extra tredje rum, som fungerar väl som ett arbetsrum, klädrum eller sovrum för ett litet barn. Vacker utsikt mot innergården i norr och Rödbergsgatan i söder. Rymligt badrum, tvättorn ryms. Rikligt med förvaringsutrymme och husbolaget har en trivsam takterrass samt bilplatser på gården. Väl skött bolag med hyresintäkter (ca 84.000 eur per bokslut 30.4.2025) och de flesta stora renoveringarna gjorda. Här bor du ett stenkast från kärncentrum, nära goda trafikförbindelser och service.
Ta kontakt och boka in din egen visningstid. Vi öppnar dörrar till nytt - hjärtligt välkommen!
Lisätiedot ja esittelyt / Tilläggsinfo samt visningar
Linda Salonius-Pasternak
Partner, LKV, KTM
linda@centrallkv.fi
+358 45 2014331
Service also in English!






