Ymmersta, Ristihaantie 14
Kodikas ja toimiva paritalo Ymmärstassa, Kauniaisten rajalla. H-talo sijaitsee taloyhtiön päädyssä, aivan metsäalueen rajalla.
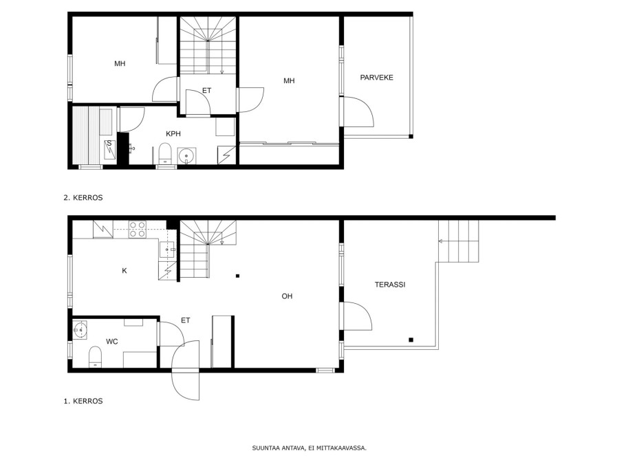
Erittäin toimiva pohja - alakerrassa on keittiö jossa tilaa ruokapöydälle sekä olohuone josta käynti terassille ja omalle pienelle piha-alueelle. Yläkerrassa on kaksi makuuhuonetta ja tilava saunallinen kylpyhuone. Suuremman makuuhuoneen yhteydessä on parveke länteen.
Talon vieressä on oma autopaikka jossa sähkölatauspiste.
Haluatko asua lähellä luontoa ja mitä ihantellisia ulkoilumahdollisuuksia, mutta silti hyvien palvelujen ja liikenneyhteyksien ulottuvilla - tule silloin tutustumaan tähän kohteeseen - ehkä tässä on sinun tuleva kotisi?
Trivsamt och funktionellt parhus i Ymmersta, alldeles invid gränsen till Grankulla. H-huset ligger ytterst i husbolaget, alldeles invid en skogsdunge.
Funktionell planlösning - i nedre våningen finns ett kök som rymmer ett matbord samt vardagsrummet med utgång till terassen och det egna lilla trädgårdsområdet. I övre våningen finns det två sovrum och ett stort badrum med bastu. Det större sovrummet har en balkong mot väster.
Parkeringsplatsen med el-laddning ligger precis invid ingången till huset.
Önskar du bo nära naturen med idealiska friluftsmöjligheter, men ändå nära ett gott serviceutbud och trafikförbindelser - tag då kontakt och kom och bekanta dig med denna trevliga trea - kanske blir det ditt hem!
Avaamme ovet uuteen - vi öppnar dörrar till nytt!
Tiedustelut ja esittelyt/ Förfrågningar och visningar:
Helen Wrede-Saalasti, +358 40 050 8384
Erittäin toimiva pohja - alakerrassa on keittiö jossa tilaa ruokapöydälle sekä olohuone josta käynti terassille ja omalle pienelle piha-alueelle. Yläkerrassa on kaksi makuuhuonetta ja tilava saunallinen kylpyhuone. Suuremman makuuhuoneen yhteydessä on parveke länteen.
Talon vieressä on oma autopaikka jossa sähkölatauspiste.
Haluatko asua lähellä luontoa ja mitä ihantellisia ulkoilumahdollisuuksia, mutta silti hyvien palvelujen ja liikenneyhteyksien ulottuvilla - tule silloin tutustumaan tähän kohteeseen - ehkä tässä on sinun tuleva kotisi?
Trivsamt och funktionellt parhus i Ymmersta, alldeles invid gränsen till Grankulla. H-huset ligger ytterst i husbolaget, alldeles invid en skogsdunge.
Funktionell planlösning - i nedre våningen finns ett kök som rymmer ett matbord samt vardagsrummet med utgång till terassen och det egna lilla trädgårdsområdet. I övre våningen finns det två sovrum och ett stort badrum med bastu. Det större sovrummet har en balkong mot väster.
Parkeringsplatsen med el-laddning ligger precis invid ingången till huset.
Önskar du bo nära naturen med idealiska friluftsmöjligheter, men ändå nära ett gott serviceutbud och trafikförbindelser - tag då kontakt och kom och bekanta dig med denna trevliga trea - kanske blir det ditt hem!
Avaamme ovet uuteen - vi öppnar dörrar till nytt!
Tiedustelut ja esittelyt/ Förfrågningar och visningar:
Helen Wrede-Saalasti, +358 40 050 8384






