Vaarala, Rajatie 14
Vaarala, Rajatie 14
Vantaa
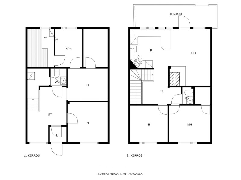
Kaksikerroksisessa rivitalohuoneistossa(105m) on 3 makuuhuonetta-yksi alakerran sisäāntulossa ja kaksi yläkerrassa. Yläkerran toisen makuuhuoneen yhteydessä vaatehuone.
Molemmissa tasoissa on erilliset wc:t, alakerrassa tilavat sauna/kph-tilat.
Keittiön saareke avautuu olohuoneeseen, josta kulku parvekkeelle ja omalle terassipihalle.
Olohuoneen takka luo tunnelmaa syys-ja talvi-iltoihin.
Läpitalon asunnosta näkymät etupihalle - vehreät sisäpihanäkymät takapihan parvekkeelta ja omalta terassipihalta. Rajakylän alue tunnetaan viihtyisänä ja lapsiystävällisenä, jossa luonto ja palvelut ovat sopivassa tasapainossa. Miellyttävä ja ystävällinen naapurusto, taloyhtiössä osakkaiden omatoiminen yhteisten piha-alueiden hoito.
Huoneiston alakerta(sauna, märkätilat, lattiat) remontoitu kauttaaltaan ja yläkerran lattiat hiottu/lakattu.
Heti vapaa!
Ammattilainen palveluksessanne- nopeaa ja ammattitaitoista apua huoneisto-ja kiinteistöasioihin.
Betjäning även på svenska. Service also in english.
Yksityisesittelyt sopimuksen mukaan.
Kai Mäkinen, LKV, LV
tel. +358 500 577334
kai@centrallkv.fi
Molemmissa tasoissa on erilliset wc:t, alakerrassa tilavat sauna/kph-tilat.
Keittiön saareke avautuu olohuoneeseen, josta kulku parvekkeelle ja omalle terassipihalle.
Olohuoneen takka luo tunnelmaa syys-ja talvi-iltoihin.
Läpitalon asunnosta näkymät etupihalle - vehreät sisäpihanäkymät takapihan parvekkeelta ja omalta terassipihalta. Rajakylän alue tunnetaan viihtyisänä ja lapsiystävällisenä, jossa luonto ja palvelut ovat sopivassa tasapainossa. Miellyttävä ja ystävällinen naapurusto, taloyhtiössä osakkaiden omatoiminen yhteisten piha-alueiden hoito.
Huoneiston alakerta(sauna, märkätilat, lattiat) remontoitu kauttaaltaan ja yläkerran lattiat hiottu/lakattu.
Heti vapaa!
Ammattilainen palveluksessanne- nopeaa ja ammattitaitoista apua huoneisto-ja kiinteistöasioihin.
Betjäning även på svenska. Service also in english.
Yksityisesittelyt sopimuksen mukaan.
Kai Mäkinen, LKV, LV
tel. +358 500 577334
kai@centrallkv.fi
Kohteen tiedot | |
| Sijainti | Rajatie 14, 01230 Vantaa |
|---|---|
| Kerros | 1-2 |
| Kerroksia talossa | 2 |
| Kaupunginosa | Vaarala |
| Asuinpinta-ala | 105 m² |
| Kokonaispinta-ala | 105 m² |
| Huoneiston kokoonpano | Oh, 3mh, avok, 2wc, khh, sauna, oleskelutila, kph, vh, var., parveke, terassipiha-alue |
| Huoneita | 5 |
| Kunto | Hyvä |
| Keittiön varustetaso | Astianpesukone, keittiösaareke, uuni, liesi, mikroaaltouuni, jääkaappi ja liesituuletin (hormiin) |
| Parveke | Ulostyönnetty |
| Kylpyhuoneen varustetaso | Suihku, pesukoneliitäntä ja lattialämmitys |
| Saunan kuvaus | Ikkunallinen sauna huoneiston sisäpihan suuntaan. |
| Säilytystilat | Huoneiston alakerrassa varasto ja takapihan parvekkeen alla lisäsäilytystilaa. |
| Tulevat korjaukset | Ei tiedossa olevia tulevia remontteja seuraavien viiden vuoden aikana. -normaalia huolto- ja kunnossapitotoimia |
| Tehdyt remontit | 1994 Julksivumaalaukset 1997 Vesivaraajatuusittu 1997 Kattojen uusiminen 2004 Korvausventtiilien asennus 2005 Huippuimureiden uusiminen 2005 Huoneistojen D ja E väliseinäkorjaus 2007 Autopaikkojen asfaltointi 2009 Parvekelaudoitusen korjaus ja uusiminen 2010 Salaojakorjaukset paritalo 2018 Pumppaamo 2019 Katon uusinta paritalo 2022 E-asunnon rakennekorjaukset, salaojitus, vesien ohjaus 2023 B-asunnon keittiön vuotovahinko 2024 B-asunnon kosteus- ja sisäilmatekninen korjaus |
| Asumismuoto | Oma |
| Lisätiedot | Ei tarkistusmitattu. Pinta-alat saattavat tämän ikäisissä kohteissa (yhtiö rekisteröity ennen 1.1.1992) poiketa olennaisestikin asuinrakennusten nykyisten mittaustapojen ja standardien (SFS 5139) mukaan laskettavasta asuintilojen pinta-alasta. Pinta-ala voi siis olla edellä mainittua pienempi tai suurempi. |
| Kiinteistötunnus | 0092-0403-0002-0206 |
Hintatiedot ja muut kustannukset | |
| Myyntihinta | 222 376.60 € |
| Neliöhinta | 2 180,95 €/m² |
| Velaton myyntihinta | 229 000 € |
| Velka | 6 623,40 € |
| Hoitovastike | 262,50 € |
| Rahoitusvastike | 269,85 € |
| Yhtiövastike | 532.35 € |
| Vesimaksu | 13 € / hlö / kk |
| Vesimaksu | Autopaikkamaksu 40€/ vuosi. |
Talon ja tontin tiedot | |
| Kohde on | Asunto-osake |
| Rakennuksen tyyppi | Rivitalo |
| Taloyhtiön nimi | Asunto Oy Rajatie 14 |
| Rakennusvuosi | 1980 |
| Taloyhtiön sauna | Kyllä |
| Pysäköintitilat | Etupihalla parkkipaikka, jossa sähkötolppa |
| Hissi talossa | Ei |
| Kattotyyppi | Harjakatto |
| Tontin pinta-ala | 2161 m² |
| Tontin omistus | Oma |
| Lämmitys | Sähkö ja Lämminvesivaraaja |
Lisätiedot | |
| Vesijohto | Kunnan |
| Viemäri | Kunnan |
| Keittiön kuvaus | Saareke erottaa keittiön olohuoneesta, jossa takka. |
| Keittiön lattiamateriaali | Parketti |
| Keittiön seinämateriaali | Maali |
| Liesi | Induktio ja Rasvakeitin |
| Kylpyhuoneen kuvaus | Saunatilojen yhteydessä isot suihkutilat. |
| Kylpyhuoneen lattiamateriaali | Laatta |
| Kylpyhuoneen seinämateriaali | Kaakeli |
| WC:n kuvaus | Alakerran wc:n yhteydessä varastotila, jossa pakastin. |
| WC:n seinämateriaali | Kaakeli |
| WC:n lattiamateriaali | Laatta |
| Olohuoneen kuvaus | Yläkerrassa, kulku takapihan parvekkeelle ja pihaterassipatiolle. |
| Olohuoneen lattiamateriaali | Parketti |
| Olohuoneen seinämateriaali | Maali |
| Kodinhoitohuoneen kuvaus | Saunatilojen vieressä, tällä hetkellä varastona. Tilassa lämminvesivaraaja |
| Kodinhoitohuoneen lattiamateriaali | Betoni ja Maalattu |
| Kodinhoitohuoneen seinämateriaali | Maali |
| Makuuhuoneen kuvaus | Kaksi ylhäällä ja yksi alhaalla (sisääntulossa) - masterbedroomin yhteydessä vaatehuone. |
| Makuuhuoneen lattiamateriaali | Parketti |
| Makuuhuoneen seinämateriaali | Maali ja puu |
| Kalustettu | Ei |
| Pinta-alan tarkistusmittaus | Ei |
| Ryhmä | Asunnot |
| Myydään vuokrattuna | Ei |
| Energiatodistus | Kyllä |
| Kiinteistön hoito | Asukkaat |

























































