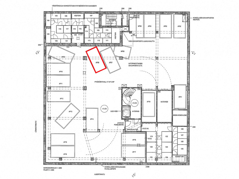
Punavuori, Albertinkatu 27 AP 8
Punavuori, Albertinkatu 27 AP 8
Helsinki
Keskeisellä paikalla Punavuoressa, vapaa autohallipaikka, johon pääsee vaivattomasti autohissillä suoraan kadulta. Autopaikka on 2,5 m leveä ja n. 5,0 m pitkä. Hississä leveyttä 2,4 m, pituutta 6,4 m ja korkeutta 2,15 m.
Ystävälliset tiedustelut:
Anna-Maija Wass
044 325 5544
maija@centrallkv.fi
Ystävälliset tiedustelut:
Anna-Maija Wass
044 325 5544
maija@centrallkv.fi
Kohteen tiedot | |
| Sijainti | Albertinkatu 27 AP 8, 00180 Helsinki |
|---|---|
| Kaupunginosa | Punavuori |
| Huoneiston kokoonpano | AP 8 |
| Huoneita | 1 |
| Kunto | Hyvä |
| Tehdyt remontit | Asunto-osan uudisrakentaminen 2015-16 Toimisto-osan peruskorjaus 2016-17 Vesivahingon korjaus 2019-20 Autohissin korjauksia 2024 Liiketilan (kauppa, yksi seinä) paloturvallisuuden parantaminen 2024 |
| Asumismuoto | Oma |
| Kiinteistötunnus | 091-4-72-2 |
Hintatiedot ja muut kustannukset | |
| Myyntihinta | 45 855.49 € |
| Velaton myyntihinta | 49 000 € |
| Velka | 3 144,51 € |
| Hoitovastike | 78,93 € |
| Rahoitusvastike | 24,60 € |
| Yhtiövastike | 103.53 € |
Talon ja tontin tiedot | |
| Kohde on | Asunto-osake |
| Rakennuksen tyyppi | Autohallipaikka |
| Taloyhtiön nimi | Asunto Oy Helsingin Storken |
| Rakennusvuosi | 2016 |
| Hissi talossa | Kyllä |
| Kattotyyppi | Tasakatto |
| Tontin pinta-ala | 951 m² |
| Tontin omistus | Oma |
| Lämmitys | Kaukolämpö |
Lisätiedot | |
| Pinta-alan tarkistusmittaus | Ei |
| Taloyhtiön lisätiedot | Taloyhtiö valmistunut 1970 ja asunto-osan uudisrakennus valmistunut 2016. |
| Ryhmä | Autotallit |
| Myydään vuokrattuna | Ei |
| Lisätietoa muista kustannuksista | Yhtiöjärjestyksen mukaisesti Ap 8 on 26,8 m² ja alakellarin vastike on 0,45 kertainen. Autopaikkaneliöt on jyvitetty, eli kk-vastike on 12,06 jm² x 6,50 €/m² = 78,39 € |
| Energiatodistus | Kyllä |
| Kiinteistön hoito | Huoltoyhtiö |
| Isännöinti | OIT Isännöinti Helsinki Oy |
Kohdetta hoitaa:
Anna-Maija Wass
Kiinteistönvälittäjä, LKV, LVV, KiAT, KEDmaija@centrallkv.fi
+358 44 325 5544














