Vierumäki, Salkolantie 15 B 3
Vierumäki, Salkolantie 15 B 3
Vantaa
Seuraavat esittelyt: 08.02.2026 klo 14:15 - 15:00, Bettina Ruuskanen, +358 50 590 8716, bettina@centrallkv.fi
Tervetuloa tutustumaan valoisaan ja toimivapohjaiseen paritalokotiin idyllisellä Vantaan Vierumäen omakotitaloalueella. Tämä vuonna 2002 valmistunut (hallinnanjakosopimuksella jaettu) kiinteistö tarjoaa arkeen juuri oikean yhdistelmän rauhaa, tilaa ja luonnonläheisyyttä – kuitenkin hyvien kulkuyhteyksien äärellä.
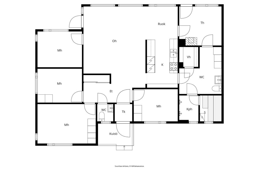
Kodin 116 m² käsittää 3-4 makuuhuonetta, suuren olohuoneen, keittiön, saunaosaston, kodinhoitohuoneen, takkahuoneen, erillisen wc:n sekä runsaasti säilytystiloja. Pohjaratkaisu on selkeä ja käytännöllinen, ja suuret ikkunat tuovat luonnonvalon kauniisti sisään. Olohuoneesta avautuu näkymä omalle pihalle, – täydellinen ympäristö lapsiperheelle tai rauhaa arvostavalle.
Asunnolla on oma tilava terassi sekä suojaisa piha-alue, jotka tekevät tästä loistavan kodin ympärivuotiseen oleskeluun. Asunnolle kuuluu kaksi parkkipaikkaa joissa sähköauton latausmahdollisuus.
Alueen vetovoimaa kasvattaa merkittävästi aivan lähialueelle rakentuva Elmon urheilupuisto – 63 miljoonan euron hankekokonaisuus, joka tuo tulevaisuudessa monipuoliset liikuntamahdollisuudet kävelyetäisyydelle: jäähalleja, yleisurheilukeskuksen, uimahallin, palloilutiloja ja paljon muuta.
Vierumäki on tunnettu väljästä pientaloasutuksestaan, luonnosta ja perheystävällisyydestään – täällä viihdytään pitkään.
Tämä koti on valmis toivottamaan tervetulleeksi seuraavat asukkaansa.
Tarjoamme halukkaille myös yksityisnäyttöjä ennen ensiesittelyä!
Avaamme ovet uuteen - olisiko tässä uusi upea kotisi?
Lisätiedot ja esittelyt :
Bettina Ruuskanen
bettina@centrallkv.fi
+358 50 5908716
Joachim Flander
jocke@centrallkv.fi
+358 40 5632690
Service also in English!
Kodin 116 m² käsittää 3-4 makuuhuonetta, suuren olohuoneen, keittiön, saunaosaston, kodinhoitohuoneen, takkahuoneen, erillisen wc:n sekä runsaasti säilytystiloja. Pohjaratkaisu on selkeä ja käytännöllinen, ja suuret ikkunat tuovat luonnonvalon kauniisti sisään. Olohuoneesta avautuu näkymä omalle pihalle, – täydellinen ympäristö lapsiperheelle tai rauhaa arvostavalle.
Asunnolla on oma tilava terassi sekä suojaisa piha-alue, jotka tekevät tästä loistavan kodin ympärivuotiseen oleskeluun. Asunnolle kuuluu kaksi parkkipaikkaa joissa sähköauton latausmahdollisuus.
Alueen vetovoimaa kasvattaa merkittävästi aivan lähialueelle rakentuva Elmon urheilupuisto – 63 miljoonan euron hankekokonaisuus, joka tuo tulevaisuudessa monipuoliset liikuntamahdollisuudet kävelyetäisyydelle: jäähalleja, yleisurheilukeskuksen, uimahallin, palloilutiloja ja paljon muuta.
Vierumäki on tunnettu väljästä pientaloasutuksestaan, luonnosta ja perheystävällisyydestään – täällä viihdytään pitkään.
Tämä koti on valmis toivottamaan tervetulleeksi seuraavat asukkaansa.
Tarjoamme halukkaille myös yksityisnäyttöjä ennen ensiesittelyä!
Avaamme ovet uuteen - olisiko tässä uusi upea kotisi?
Lisätiedot ja esittelyt :
Bettina Ruuskanen
bettina@centrallkv.fi
+358 50 5908716
Joachim Flander
jocke@centrallkv.fi
+358 40 5632690
Service also in English!
Kohteen tiedot | |
| Sijainti | Salkolantie 15 B 3, 01450 Vantaa |
|---|---|
| Kerros | 1 |
| Kerroksia talossa | 1 |
| Kaupunginosa | Vierumäki |
| Asuinpinta-ala | 116 m² |
| Kokonaispinta-ala | 116 m² |
| Huoneiston kokoonpano | 3-4 mh, oh, avok, ruokt, takkah. pesuh/wc, s, erill. wc, khh, vh, terassi |
| Huoneita | 5 |
| Kunto | Hyvä |
| Keittiön varustetaso | Jääkaappipakastin, uuni, astianpesukone ja liesituuletin |
| Kylpyhuoneen varustetaso | WC-istuin, suihku, peilikaappi ja pesuallas |
| Tehdyt remontit | 2025 Salaojat todettu hyväkuntoisiksi. 2024 Kylpyhuone uusittu sekä pintaremontoitu. |
| Rakennusoikeus | 399.2 m² |
| Palvelut | Lähistölle rakenteilla Elmon urheilupuisto 63 miljoonalla, tulossa: 1kpl Jäähalli 1kpl Uimahalli 1kpl maauimala 2kpl tenniskenttiä 3kpl rantapallokenttiä 1kpl rullalätkökenttä 1kpl koripallokenttä 1 kpl Jalkapallokenttä (talvisin tekojää) 1 kpl Jalkapallokenttä (tekonurmi / liikuntahalli ) Ulkokuntosali Kiipeilyalue Perhepuisto Kulomäen lähiliikuntapaikan tenniskenttä Kulomäen koulun luistelukenttä Monitoimikeskus Lumo Hyks Peijaksen Sairaala Vierumäen K-Market Kukkakauppa ja puutarhamyymälä Vantaan Koivukylän liikekeskus (citymarket) Leipomo PH7 |
| Lisätiedot | Ei tarkistusmitattu. Pinta-ala voi siis olla edellä mainittua pienempi tai suurempi. |
| Kiinteistötunnus | 92-81-384-23 |
Hintatiedot ja muut kustannukset | |
| Myyntihinta | 277 500 € |
| Neliöhinta | 2 392,24 €/m² |
| Velaton myyntihinta | 277 500 € |
Talon ja tontin tiedot | |
| Kohde on | Kiinteistö |
| Rakennuksen tyyppi | Paritalo |
| Rakennusvuosi | 2001 |
| Taloyhtiön sauna | Kyllä |
| Hissi talossa | Ei |
| Kattotyyppi | Harjakatto |
| Tontin pinta-ala | 1996 m² |
| Tontin omistus | Oma |
| Lämmitys | Sähkö, ilmalämpöpumppu ja takka |
Lisätiedot | |
| Keittiön lattiamateriaali | Laminaatti |
| Keittiön seinämateriaali | Maali |
| Liesi | Keraaminen liesi |
| Kylpyhuoneen lattiamateriaali | Laatta |
| Kylpyhuoneen seinämateriaali | Kaakeli |
| WC:n lattiamateriaali | Muovimatto |
| Olohuoneen lattiamateriaali | Laminaatti |
| Olohuoneen seinämateriaali | Maali |
| Kodinhoitohuoneen lattiamateriaali | Laatta |
| Kodinhoitohuoneen seinämateriaali | Kaakeli |
| Makuuhuoneen lattiamateriaali | Laminaatti |
| Makuuhuoneen seinämateriaali | Maali |
| Kaavoitustiedot | Vantaan kaupunki |
| Koulut | Vierumäen Ala-aste Kulomäen Koulu Vantaan Steinerkoulun Lukio Lumon Lukio |
| Ensiesittelyssä | Kyllä |
| Kalustettu | Ei |
| Pinta-alan tarkistusmittaus | Ei |
| Ryhmä | Asunnot |
| Tontin myynti | Määräosa |
| Myydään vuokrattuna | Ei |
| Energiatodistus | Kyllä |








































