Vanha Munkkiniemi, Munkkiniemi, Solnantie 1-3
Vanha Munkkiniemi, Munkkiniemi, Solnantie 1-3
Helsinki
Seuraavat esittelyt: 18.01.2026 klo 14:00 - 14:45, Kai Mäkinen, +358 50 0577 334, kai@centrallkv.fi
Tämä upea rivitaloasunto sijaitsee arvostetulla Vanhan Munkkiniemen alueella Helsingissä, tarjoten asukkailleen loistavat puitteet merellisessä ympäristössä. Asunnon tilavat ja valoisat huoneet avautuvat kauniisiin maisemiin, ja olohuoneen suuret ikkunat tuovat sisään runsaasti luonnonvaloa.
Olohuoneen yhteydessä on tunnelmallinen takka, olohuoneesta käynti terassiparvekkeelle ja piha-alueelle, josta avautuvat upeat näkymät Ramsayn rannan yli Munkkiniemen venesatamaan ja merelle. Olohuoneen yhteydessä ruokasali, josta avarat näkymät.
Huoneisto sijaitsee arvostetulla Vanhan Munkkiniemen merellisellä alueella.
Keittiö on hyvin varusteltu ja isot ikkunat sisäpihan ja meren suuntaan.. Makuuhuoneet suuntautuvat vehreälle sisäpiha-alueelle, tarjoten näin täydellisen paikan rentoutumiselle. Tilavassa kylpyhuoneessa on myös merelliset näkymät, ja se tarjoaa erinomaiset puitteet arjen askareiden hoitamiseen.
Sisäpihan kautta esteetön kulku porraskäytävään ja huoneistoon.
Päättyvän tien, (ei läpikulkuliikennettä) varrella. Arvostettu, hyvin hoidettu ja vakavarainen taloyhtiö.
Taloyhtiöllä autohalli, harrastehuone ja upeat sauna/uima-allastilat takkahuoneineen - autopaikasta ja sauna/uima-allas-osaston käytöstä ei veloiteta osakkailta erilliskorvauksia. Huoneistolle kuuluu iso ja lämmin varastotila.
Huoneisto sijaitsee arvostetulla Vanhan Munkkiniemen merellisellä alueella.
Alueella on erinomaiset liikenneyhteydet, ja raitiovaunu- sekä linja-autopysäkit ovat lyhyen kävelymatkan päässä. Lähistöltä löytyvät myös monipuoliset palvelut, koulut ja päiväkodit, jotka tekevät tästä kodista ihanteellisen valinnan perheille.
Päättyvän tien, (ei läpikulkuliikennettä) varrella. Arvostettu, hyvin hoidettu ja vakavarainen taloyhtiö.
Taloyhtiöllä autohalli, harrastehuone ja upeat sauna/uima-allastilat takkahuoneineen - autopaikasta ja sauna/uima-allas-osaston käytöstä ei veloiteta osakkailta erilliskorvauksia. Huoneistolle kuuluu iso ja lämmin varastotila.
Tämä koti on täydellinen valinta niille, jotka arvostavat merellistä ympäristöä, rauhallista asuinaluetta ja tasokasta asumista Munkkiniemen alueella.
Vi öppnar dörrar till nytt - även där man kan få planera och förverkliga just de dörrar man själv vill ha!
Service also in English!
Lisätiedot - Tilläggsinfo - Additional information
Yksityisesittelyt sopimuksen mukaan - Privatvisningar enligt överenskommelse - Private viewings upon agreement
Kai Mäkinen
Partner, LKV, LVV
tel. +358 500 577334
kai@centrallkv.fi
Olohuoneen yhteydessä on tunnelmallinen takka, olohuoneesta käynti terassiparvekkeelle ja piha-alueelle, josta avautuvat upeat näkymät Ramsayn rannan yli Munkkiniemen venesatamaan ja merelle. Olohuoneen yhteydessä ruokasali, josta avarat näkymät.
Huoneisto sijaitsee arvostetulla Vanhan Munkkiniemen merellisellä alueella.
Keittiö on hyvin varusteltu ja isot ikkunat sisäpihan ja meren suuntaan.. Makuuhuoneet suuntautuvat vehreälle sisäpiha-alueelle, tarjoten näin täydellisen paikan rentoutumiselle. Tilavassa kylpyhuoneessa on myös merelliset näkymät, ja se tarjoaa erinomaiset puitteet arjen askareiden hoitamiseen.
Sisäpihan kautta esteetön kulku porraskäytävään ja huoneistoon.
Päättyvän tien, (ei läpikulkuliikennettä) varrella. Arvostettu, hyvin hoidettu ja vakavarainen taloyhtiö.
Taloyhtiöllä autohalli, harrastehuone ja upeat sauna/uima-allastilat takkahuoneineen - autopaikasta ja sauna/uima-allas-osaston käytöstä ei veloiteta osakkailta erilliskorvauksia. Huoneistolle kuuluu iso ja lämmin varastotila.
Huoneisto sijaitsee arvostetulla Vanhan Munkkiniemen merellisellä alueella.
Alueella on erinomaiset liikenneyhteydet, ja raitiovaunu- sekä linja-autopysäkit ovat lyhyen kävelymatkan päässä. Lähistöltä löytyvät myös monipuoliset palvelut, koulut ja päiväkodit, jotka tekevät tästä kodista ihanteellisen valinnan perheille.
Päättyvän tien, (ei läpikulkuliikennettä) varrella. Arvostettu, hyvin hoidettu ja vakavarainen taloyhtiö.
Taloyhtiöllä autohalli, harrastehuone ja upeat sauna/uima-allastilat takkahuoneineen - autopaikasta ja sauna/uima-allas-osaston käytöstä ei veloiteta osakkailta erilliskorvauksia. Huoneistolle kuuluu iso ja lämmin varastotila.
Tämä koti on täydellinen valinta niille, jotka arvostavat merellistä ympäristöä, rauhallista asuinaluetta ja tasokasta asumista Munkkiniemen alueella.
Vi öppnar dörrar till nytt - även där man kan få planera och förverkliga just de dörrar man själv vill ha!
Service also in English!
Lisätiedot - Tilläggsinfo - Additional information
Yksityisesittelyt sopimuksen mukaan - Privatvisningar enligt överenskommelse - Private viewings upon agreement
Kai Mäkinen
Partner, LKV, LVV
tel. +358 500 577334
kai@centrallkv.fi
Kohteen tiedot | |
| Sijainti | Solnantie 1-3, 00330 Helsinki |
|---|---|
| Kerros | 1 |
| Kerroksia talossa | 2 |
| Kaupunginosa | Vanha Munkkiniemi, Munkkiniemi |
| Asuinpinta-ala | 120 m² |
| Kokonaispinta-ala | 120 m² |
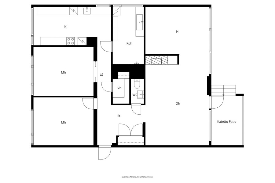
| Huoneiston kokoonpano | 2 mh, oh, k, kph, wc, rt, vh, et, terassiparveke |
| Huoneita | 4 |
| Kunto | Hyvä |
| Keittiön varustetaso | Jääkaappipakastin, liesi, astianpesukone ja uuni |
| Parveke | Ulostyönnetty |
| Kylpyhuoneen varustetaso | Suihku, pesukoneliitäntä, peili, pesuallas ja pyyhekuivain |
| Tulevat korjaukset | 2026-2027 -jätehuoltoalueen aidan rakentaminen -piha-alueiden kasvillisuuden uudistaminen ja mahdollinen valaistuksen parantaminen 2028-2029 -ei tällä hetkellä tiedossa muita merkittäviä korjauksia |
| Tehdyt remontit | 2024-2025 -ikkuna-ja ikkunoiden julkisivuremontin kilpailutus ja toteutus suunnitelmien mukaan -porrashuoneiden ovi- ja ikkunakehikkojen kilpailutus ja toteutus suunnitelmien mukaan 2024 -molempien väestösuojien varusteet uusittiin ja tilat kunnostettiin 2023 -kattourakka valmistui -betonipintojen huoltomaalaus ja tiilisaumojen korjaushanke -maanvastaisten sokkelien reunan sorastus -vedenohjaus sisäänkäyntiväyliltä poispäin (ST 1-3 ja 5) 2022 -palohuoltojärjestelmän asennus autohalleihin -kattoremontin aloitus suunnitelman mukaan 2021 -väestösuojien tarkastus ja tiiviyskokeet -ilmanvaihdon tarkistuksia ja tarvittavien rakennekunnostusten teettämistä -autohallien iv-laitteiden uusinta ja modernisointi -lämmönjakohuoneiden etävalvontalaitteiden aennus -ST 4-6 autohallin oven edustan kaivon tukirenkaan uusiminen -kattojen uusimisen korjaussuunnittelu (pl. Kartanontie 8-10, uudistettu 2012) -ikkunaremontin (puuikkunat, lasi-/kupariseinämät, porrashuoneiden teräskehikkoikkunat) korjaussuunnittelun aloitus -julkisivujen (tiilisaumat, betoni-/puu-/metallipinnat) korjaussuunnitelman aloitus 2020 -linjasaneerauksen loppuunvienti, ulkoalueiden siistaus/ennallistaminen, LVIS-urakoitsijan puolesta kevät 2020 -autohallien valaistuksen uusiminen, sähköautojen latausjärjestelmän rakentaminen sekä hallien maalaus -ikkunoiden kuntotarkastus sekä pidemmän tähtäimen hoitosuunnitelma -rakoventtiilien asennus ikkunoihin ilmanvaihdon tehostamiseksi -tiilisaumojen korjausta, Solnantie 4-6 - Solnantie 1-3 ja 5 talojen viereisten jäteastioiden suoja-aitojen suunnittelu 2019 Linjasaneeraus/LVIS sisälktäen lisäksi: -lämmitysverkoston kunnostus, kaukolämmönalajakokeskusten(3 kpl) uusinta, termostaattien uusinta ja lämmönsäädön tasapainotus -IV-kanavien puhdistus -talojen ulkopuolisten viemäreiden ja vesijohtojen uusiminen -uusien salaojien ja patolevyjen rakentaminen osana putkien ulkokaivuutöitä -Solnantie 4-6 kadunpuoleinen seinä sekä Solnantie 5 autohallin sisäänkäynnin maanvastainen seinä -Uima-altaiden huoltokorjaus tai osakkaiden päättämät uima-altaiden poistot -etelä-ja länsi-ikkunoiden ulkopuolinen maalaus, lisäksi ST 4-6 asuntojen kadunpuolen ikkunat. Ikkunoiden puuosakorjauksia tehty 2018 -linjasaneerauksen tekninen suunnittelu, hankkeen kilpailutus ja urakoitsijan valinta -Solnantie 5 julkisivumuurin tiilisaumojen korjauksia -villiviinikasvillisuuden poistoa 2015 -kylmäkellarin kylmälaitteiden uusiminen 2014 -lukkojärjestelmän uusiminen 2013 -ilmanvaihtokanavien ja ilmanvaihdon mittaus 2012 -Solnantien 4-6 autohallin oven ja ovikoneiston uusinta, Solnantie 5 autohallin ovikoneiston uusinta -Kartanontien 8-10 huopakatteen uusinta, muiden rakennusten huopakatteiden huoltokorjaukset, kattoikkunoiden uusintaa -Solnantie 4-6 ja 5 pihakansien ja vesieristysten (so. myös niiden alla olevien autohallien kattojen) peruskorjaus, pihaportaiden ja niihin liittyvien rakenteiden peruskorjaus, lipputankojen ja niiden sijoittelun uusinta 2011 -ikkunoiden, parvekeovien, ja käyntiovien ulkopuolisten puu-ja peltiosien korjaus ja huoltomaalaus 2009 -Solnantie 1-3 ja 9 saunaosastojen kunnostus 2008 -piha-asfaltoinnin korjausta 2007 -syväkeräysjätesäiliöiden hankinta ja asennus 2006 -tulihormien nuohous 2005 -Solnantie 4-6 sisääntulojen ja portaiden vesieristys ja kunnostus -Kartanontie 8-10 sisäpihojen lasiväliseinien uusinta 2002 -Solnatie 4-6 jätevesipumppaamo -ikkunapuitteiden ja eristetilojen ulkopuolinen kunnostus 2001 -Solnantie 1-3 ja 9 porrashuoneiden lämpölasien uusiminen, teräsosien maalaus -betonisokkeleiden kunnostus ja maalaus -Solnatie 1-3 ja 9 parvekkeiden kunnostus -ulkopuolisten puuosien kunnostus ja maalaus 2000 -Solnantie 5 pääviemärin kunnostus 1999 -Solnantie 4-6, 5 ja Kartanontie 8-10 linjasulku- ja patteriventtiilien uusinta, verkoston perussäätö 1998 -Solnantie 4-6 ja 9 linjasulku-ja patteriventtiilien uusinta, verkoston perussäätö -Solnantie 1-3 kylmäkellarin kylmäkoneen uusinta 1997 -Solnantie 9 huippuimurin uusinta -Solnantie 5 autohallin nosto-oven uusinta -kaukolämmön alajakokeskusten (3kpl) uusinta -Kartanontie 8-10 parvekkeiden kunnostus 1996 -Solnantie 4-6 ja 5B parvekkeiden kunnostus -Julkisivutiilien saumauskorjauksia -ilmanvaihtohormien puhdistus 1994 -kattopinnoitteiden uusinta 1993 -Solnantie 4-6 autohallin katon pinnoitus 1987 -Solnantie 5 autohallin katon pinnoitus |
| Asumismuoto | Oma |
| Palvelut | Kaikki Munkkiniemen palvelut lähietäisyydellä |
| Lisätiedot | Ei tarkistusmitattu. Pinta-alat saattavat tämän ikäisissä kohteissa (yhtiö rekisteröity ennen 01.01.1992) poiketa olennaisestikin asuinrakennusten nykyisten mittaustapojen ja standardien (SFS 5139) mukaan laskettavasta asuintilojen pinta-alasta. Pinta-ala voi siis olla edellä mainittua pienempi tai suurempi. |
Hintatiedot ja muut kustannukset | |
| Myyntihinta | 988 000 € |
| Neliöhinta | 8 233,33 €/m² |
| Velaton myyntihinta | 988 000 € |
| Hoitovastike | 975 € |
| Yhtiövastike | 975 € |
| Vesimaksu | Sisältyy hoitovastikkeeseen |
| Vesimaksu | Sauna/uima-allas-osaston käyttö on maksutonta, samoin myös huoneistolle kuuluva autohallipaikka. |
Talon ja tontin tiedot | |
| Kohde on | Asunto-osake |
| Rakennuksen tyyppi | Kerrostalo |
| Taloyhtiön nimi | Asunto Oy Huvilatontit |
| Rakennusvuosi | 1973 |
| Taloyhtiön sauna | Ei |
| Pysäköintitilat | Huoneistolle kuuluu autohallipaikka, latausmahdollisuus asentaa huoneiston autopaikkaan |
| Hissi talossa | Ei |
| Kattotyyppi | Tasakatto |
| Tontin pinta-ala | 10159 m² |
| Tontin omistus | Oma |
| Liikenneyhteydet | Raitiovaunupysäkille(4) 400 metriä, linja-autopysäkille 100 metriä |
| Lämmitys | Kaukolämpö |
Lisätiedot | |
| Keittiön kuvaus | Hyvin varustelu ja valoisa keittiö, josta puistomaiset ja merelliset näkymät |
| Keittiön lattiamateriaali | Laatta ja parketti |
| Keittiön seinämateriaali | Maali |
| Liesi | Induktioliesi |
| Kylpyhuoneen kuvaus | Tilava kylpyhuone. upeat näkymät isosta ikkunasta puistoon ja merelle yli Ramsayn rannan - kylpyhuoneessa tilaa pyykkien käsittelylle. |
| Kylpyhuoneen lattiamateriaali | Laatta |
| Kylpyhuoneen seinämateriaali | Kaakeli ja maali |
| WC:n kuvaus | Wc ison eteistilan yhteydessä |
| WC:n seinämateriaali | Kaakeli |
| WC:n lattiamateriaali | Laatta |
| Olohuoneen kuvaus | Iso olohuone, jossa takka- olohuoneen yhteydessä ruokasali. Olohuoneesta kulku parvekkeelle ja piha-alueelle- upeat avarat ja merelliset näkymät. |
| Olohuoneen lattiamateriaali | Parketti |
| Olohuoneen seinämateriaali | Maali |
| Makuuhuoneen kuvaus | Valoisat makuuhuoneet vehreän sisäpihan suuntaan, isot ikkunat |
| Makuuhuoneen lattiamateriaali | Vinyylipunosmatto |
| Makuuhuoneen seinämateriaali | Maali |
| Koulut | Kaksikieliset, suomenkieliset ja ranskankieliset koulut lähietäisyydellä |
| Päiväkodit | Tasokkaat päiväkodit lähietäisyydellä |
| Kalustettu | Ei |
| Pinta-alan tarkistusmittaus | Ei |
| Ryhmä | Asunnot |
| Myydään vuokrattuna | Ei |
| Lisätietoa muista kustannuksista | Autopaikka ja sauna/allasosaston käyttö sisältyvät hoitovastikkeeseen, kuten myös vesimaksu. |
| Energiatodistus | Kyllä |
| Kiinteistön hoito | Huoltoyhtiö |
| Isännöinti | Isännöitsijätoimisto Erkki Oksanen |






































































